Dettaglio Immobile

Rif. immobile: 1850 Locale in vendita San Vito Dei Normanni (BR) in Puglia Zona: Centrale

114.000,00

Descrizione

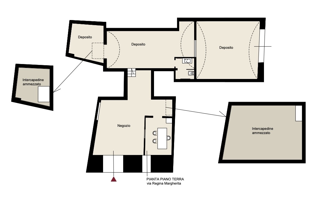
In vendita, locale commerciale - deposito situato in zona centrale(via regina margherita). Questa proprietà offre un ingresso spazioso che conduce direttamente a un ufficio annesso. Un ulteriore punto di forza è la superficie soppalcata, che vanta un’altezza di 2.20 metri. Proseguendo oltre l’ingresso, si accede a un ampio deposito con una superficie di 148m² a cui è possibile accedere da ingresso autonomo. Questo spazio versatile può adattarsi a una varietà di usi commerciali. Non perdere questa opportunità unica!

Caratteristiche

Ubicazione

72019 - San Vito Dei Normanni (Brindisi)

  • Costa: 10 Km
  • Ospedale: 21,7 Km
  • Ferrovia: 0 Km
  • Aeroporto: 22,2 Km
  • Centro: 0 Km
Richiedi Informazioni

Caratteristiche

  • Rif. immobile: 1850
  • Comune: San Vito Dei Normanni (BR)
  • Piano: Piano terra
  • Zona: Centrale
  • Locali: 3
  • Bagni: 1
  • Superficie Coperta: 236 mq
  • Superficie Pavimentata: 197 mq
  • Stato immobile: Buono
  • Prezzo: € 114.000,00
  • Classe energetica: G

+ Più efficiente

- Meno efficiente

EDIFICIO A ENERGIA QUASI 0

CLASSE

ENERGETICA

G

| Guarda anche...

Immobili Correlati

INVIA
CHIAMA ORA Whatsapp